塩尻市広丘|モデルハウス販売
4,380万円
スーパー等近隣にあり生活利便性良好
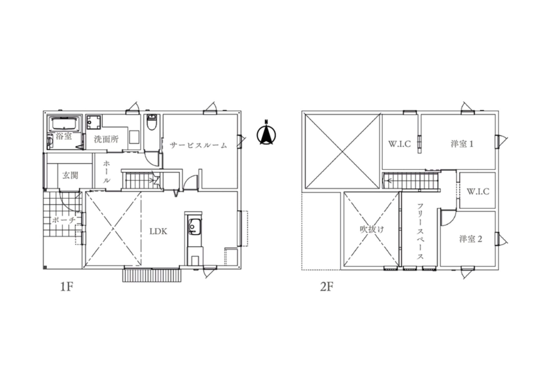
モデルハウスとして公開の住まいを販売いたします。塩尻市広丘の生活利便施設が揃う立地にあり、日々の暮らしやすさが確保されています。室内には無垢材を採用し、素材の質感を感じられる空間としました。2SLDKの間取りはライフスタイルに応じた使い方が可能です。モデルハウスとして設計された空間を、実際の住まいとしてそのままご検討いただけます。
| 所在 | 塩尻市大字広丘高出1980番1 ▸Googleマップ |
|---|---|
| 交通 | 最寄り駅:JR篠ノ井線広丘駅より約2000m 高速道路:長野道 塩尻北I.C. 車13分 |
| 土地面積 | 185.29m²(公簿) / 56.05坪 |
| 土地権利 | 所有権 |
| 接道 | 敷地西側が幅員6mの公道に接道 |
| 建物面積 | 96.05m² / 29.05坪 |
| 間取り | 2SLDK(LDK16帖、サービスルーム6.5帖、洋室6帖、洋室4.5帖、フリースペース4帖) |
| 建物構造 | 木造2階建 |
| 築年 | 2026年3月 |
| 設備 | システムキッチン・IHクッキングヒーター・食器洗浄乾燥機・TVモニタ付きインターホン・ディンプルキー・火災警報器(報知機)・BT別室・暖房便座・温水洗浄便座・バス1坪以上・追焚機能・庭・濡縁・エアコン・日当り良好・24時間換気システム・吹抜・建築確認完了検査済証・認定長期優良住宅に適合・瑕疵保険検査基準に適合・新築時の設計図書・給湯(エコジョーズ)幹太くん・洗面化粧台・照明器具付き・カーテン付き・複層ガラス・上水道(公営)・下水道(公共)・電気・駐車場2台分 |
| 現況 | モデルハウスとして利用中 |
| 引渡し | 相談 |
| 通学区等 | 塩尻市立桔梗小学校(1900m) 塩尻市立広陵中学校(1400m) |
| 備考 | 常時内覧可能(ご予約をお願いいたします) 上下水道負担金要 |
| 取引態様・仲介手数料 | 売主/手数料不要 |
| 登録日・最終更新日 | 2026/03/20 |
1階を中心に生活が完結する設計に、2階のフリースペースを組み合わせた「LOAFER」。日々の動線を無理なく整えながら、在宅ワークや趣味にも対応できる余白を確保しています。無垢材を取り入れた室内は、使い込むほどに質感が深まり、時間とともに住まいが馴染んでいきます。効率と心地よさの両立を考えた、これからの暮らしにちょうどいい住まいです。












